Skip to content
CEMENT STORAGE SOLUTION

Cement Silos — Horizontal & Vertical Models

Durable, high-capacity silos designed for mobility, safety, and precision. From compact stackable units to large stationary bins—built for concrete producers who demand reliability.

Concrete Genius Vertical Silo — CG100V

Built for the Field

Performance, speed, and options across every model

Built for Performance

Manganese-steel construction, precision-fit cones, and heavy-duty welds ensure lasting performance in harsh environments.

Plug-and-Pour Design

Fast setup with integrated conveyors, control panels, and aeration—ready for site use within hours.

Smart Options

Dust collection, level indicators, safety ladders, and handrails available across all models.

Horizontal Models

Portable, stackable, and mobile options

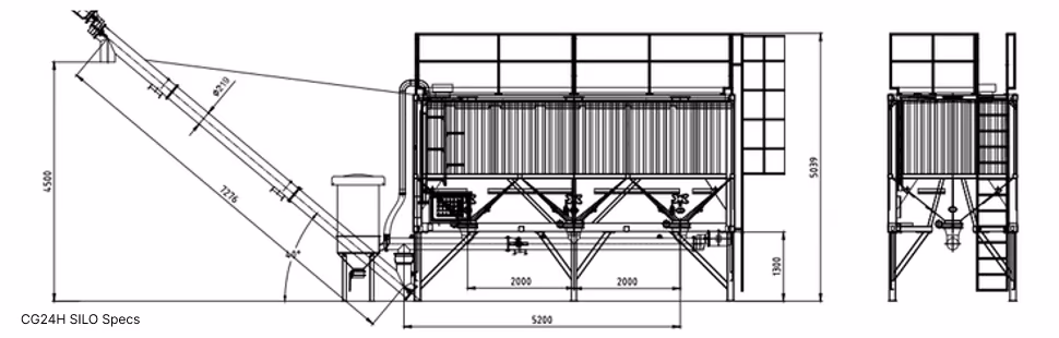
CG24H Compact Horizontal Silo

CG24H — Compact Horizontal Silo

24.5 m³ capacity • 40 US tons • 6600 kg weight. Stackable, transport-ready with twin conveyors and WAM R03 dust collector.

Download Specs (PDF)

HORIZONTAL — COMPACT — EASY TRANSPORT

Capacity 24.5 m³
Storage 40 US tons
Weight 6600 kg
Configuration Stackable, twin conveyors
Dust Collection WAM R03 dust collector
CG27HM Mobile Horizontal Silo

CG27HM — Mobile Horizontal Silo

27 m³ capacity • 38.5 US tons • dual 11 kW conveyors. Includes pulse air-jet dust collector, pressure relief valve, and full control box.

Download Specs (PDF)

HORIZONTAL — MOBILE — INTEGRATED CONTROLS

Capacity 27 m³
Storage 38.5 US tons
Conveyors Dual 11 kW
Dust Collection Pulse air-jet collector
Controls Full control box included

CG53H model specifications available upon request. Contact us for details.

Vertical Models

High-capacity stationary silos

CG50V Mid-Capacity Vertical Silo

CG50V — Mid-Capacity Vertical Silo

50 m³ volume • 53 tons storage • polyurethane-coated steel. Optional safety cage, handrail system, and WAM SiloTop filter package.

Download Specs (PDF)

VERTICAL — MID-CAPACITY — WIRELESS

Volume 50 m³
Storage 53 tons
Material Polyurethane-coated steel
Safety Options Cage, handrail system (optional)
Dust System WAM SiloTop filter package
CG100V High-Capacity Vertical Silo

CG100V — High-Capacity Vertical Silo

99 m³ capacity • ~105 tons storage. Equipped with WAM dust collector, pressure relief valve, ladders and handrail kit for max safety.

Download Specs (PDF)

VERTICAL — HIGH-CAPACITY — WIRELESS

Capacity 99 m³
Storage ~105 tons
Dust Collection WAM dust collector
Safety Features Pressure relief valve
Access Ladders and handrail kit

Model Comparison

At a glance

Model Type Capacity Storage Key Features
CG24H Horizontal 24.5 m³ 40 US tons Stackable, twin conveyors
CG27HM Horizontal 27 m³ 38.5 US tons Mobile, full control box
CG50V Vertical 50 m³ 53 tons Safety cage, WAM filter
CG100V Vertical 99 m³ ~105 tons High capacity, full safety kit
Ready to talk

Get Pricing or Ask About Availability

Tell us your unique needs and requirements, and we'll recommend the best fit model and provide accurate pricing.

Enquire Pricing
Enquire Pricing